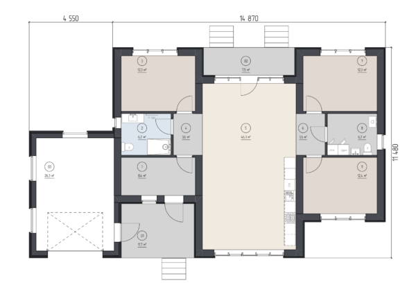
План

Экспликация помещений
| № | Наименование | Площадь |
| .01 | Крыльцо | 11,73 |
| .02 | Крыльцо | 7,53 |
| .03 | Гараж | 26,25 |
| 1 | Тамбур | 8,42 |
| 2 | Санузел | 6,19 |
| 3 | Спальня | 12,29 |
| 4 | Коридор | 3,6 |
| 5 | Кухня-гостиная | 46,32 |
| 6 | Коридор | 3,59 |
| 7 | Спальня | 12,26 |
| 8 | Топочная | 6,18 |
| 9 | Спальня | 12,42 |
| 156,78 м² |

